Toàn cảnh khu vực được đề xuất làm khu đô thị rộng gấp 3 lần quận Hoàn Kiếm tại tỉnh có loạt ông lớn Vingroup, Sun Group, T&T đang đầu tư

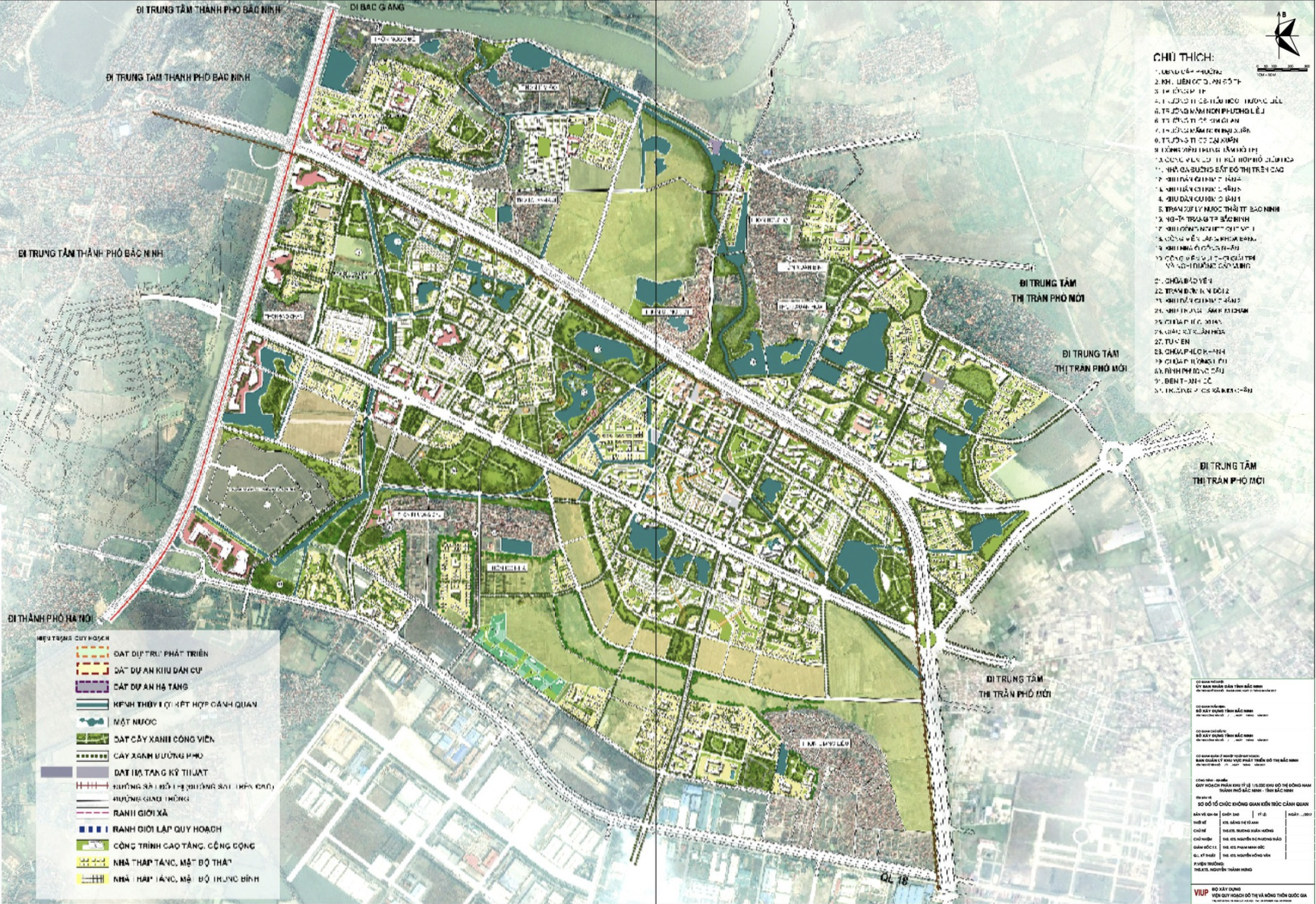
Theo quy hoạch, khu đô thị có tổng diện tích đất tự nhiên 1.520 ha, dân số dự kiến khoảng 65.000 người. Dự án được xác định là khu đô thị mới hiện đại, gắn kết với trung tâm TP Bắc Ninh cũ và các khu chức năng lân cận.

Dự án tọa lạc ở cửa ngõ phía Đông Nam TP Bắc Ninh cũ, giáp Quốc lộ 38 và chỉ cách trung tâm thành phố khoảng 7 km. Từ đây, cư dân có thể nhanh chóng di chuyển theo các trục Quốc lộ 1A, 18, đường tỉnh 279, 278 hoặc cao tốc Hà Nội – Bắc Giang, Vành đai 4, tạo mạng lưới kết nối thuận tiện với Hà Nội, Thái Nguyên, Hải Phòng và các vùng kinh tế trọng điểm phía Bắc.

Vị trí này cũng nằm liền kề chuỗi phát triển đô thị – công nghiệp năng động của Bắc Ninh, bao gồm các khu đô thị Him Lam, Vinhomes Bắc Ninh và các khu công nghiệp Yên Phong, Quế Võ nơi quy tụ nhiều tập đoàn công nghệ cao. Cách trung tâm Hà Nội khoảng 30 km và sân bay Nội Bài khoảng 50 km, khu đô thị Đông Nam Bắc Ninh sở hữu lợi thế rõ rệt để phát triển giao thương, logistics và dịch vụ chất lượng cao.

Khu đô thị được phát triển theo mô hình đô thị nén, chia thành 5 phân khu chức năng chính gồm khu dân cư, khu thương mại – dịch vụ, công viên sinh thái, khu vui chơi giải trí và trung tâm văn hóa – sự kiện. Mô hình này giúp sử dụng đất hiệu quả, đồng thời tạo không gian sống tập trung, tiện nghi cho người dân.

Hệ thống hạ tầng kỹ thuật và xã hội được quy hoạch đồng bộ, gồm các tuyến đường chính, công trình công cộng, không gian xanh, khu thể thao và các điểm sinh hoạt cộng đồng. Quy hoạch hướng tới phát triển cân bằng giữa khu dân cư, dịch vụ và cảnh quan sinh thái.

Với diện tích hơn 1.500 ha, khu đô thị Đông Nam TP Bắc Ninh có quy mô gấp khoảng ba lần quận Hoàn Kiếm cũ(Hà Nội), trở thành một trong những khu đô thị có diện tích lớn nhất khu vực miền Bắc. Dự án được kỳ vọng sẽ tạo động lực mạnh mẽ cho sự phát triển đô thị và kinh tế – xã hội của tỉnh.

Khi hoàn thiện, khu đô thị này sẽ trở thành trung tâm dân cư – thương mại – dịch vụ quy mô lớn, thu hút cộng đồng cư dân chất lượng cao, các nhà đầu tư chiến lược và doanh nghiệp trong nhiều lĩnh vực, phù hợp với định hướng phát triển đô thị hiện đại và bền vững mà tỉnh Bắc Ninh đang hướng tới.

Hiện nay, phần lớn diện tích trong khu vực quy hoạch vẫn là đất trồng lúa, đất sản xuất nông nghiệp xen lẫn một số khu dân cư. Người dân địa phương cho biết, họ vẫn chưa nắm được thông tin chi tiết về dự án.

Mới đây, lãnh đạo UBND tỉnh Bắc Ninh đã làm việc với ông Lee Han Joon, Tổng Giám đốc Tập đoàn LH, nhằm thúc đẩy hợp tác đầu tư và hoàn thiện thủ tục pháp lý cho dự án. Theo ông Lee, khu đô thị Đông Nam TP. Bắc Ninh là dự án đầu tiên của LH tại Việt Nam. Tập đoàn đã hoàn thiện báo cáo nghiên cứu khả thi và đang xin chấp thuận chủ trương đầu tư, đồng thời huy động đội ngũ chuyên gia xây dựng khu đô thị trở thành biểu tượng không chỉ của Việt Nam mà còn trên thế giới.

Tập đoàn LH, trực thuộc Chính phủ Hàn Quốc, được thành lập năm 2010 trên cơ sở hợp nhất Công ty Nhà ở quốc gia Hàn Quốc (KNHC) và Công ty Đất Hàn Quốc (KOLAND). Đây là một trong những doanh nghiệp bất động sản hàng đầu Hàn Quốc, nổi bật với thế mạnh phát triển nhà ở, khu công nghiệp và thành phố thông minh, cung cấp khoảng 120.000 căn hộ mỗi năm. Trước đó, LH cũng từng tìm hiểu cơ hội đầu tư các dự án thành phố thông minh, khu công nghiệp và nhà ở xã hội tại nhiều địa phương trong nước như Hưng Yên, TP. Huế và Đà Nẵng.

Tháng 6/2023, UBND tỉnh Bắc Ninh và LH ký kết bản ghi nhớ (MOU) về hợp tác phát triển Khu đô thị mới Đông Nam. Theo đó, hai bên sẽ nghiên cứu, trao đổi ý tưởng, lập quy hoạch chi tiết, xây dựng kế hoạch kinh doanh và tổ chức hội thảo về các vấn đề đô thị tại Bắc Ninh. Bản MOU có hiệu lực kể từ ngày ký và kéo dài đến khi lựa chọn được nhà đầu tư chính thức cho dự án.

Với quy mô lớn, vị trí chiến lược và sự tham gia của Tập đoàn Nhà đất Hàn Quốc, khu đô thị Đông Nam TP Bắc Ninh được kỳ vọng sẽ trở thành hình mẫu phát triển đô thị hiện đại của vùng Bắc Bộ. Hiện Bắc Ninh đang là điểm nóng phát triển bất động sản với hàng loạt dự án lớn của Vingroup, Sun Group, T&T, Phú Mỹ Hưng và đang đặt mục tiêu trở thành thành phố trực thuộc Trung ương vào năm 2030.
Theo antt.nguoiduatin.vn
Copy link
Lấy link!
https://antt.nguoiduatin.vn/toan-canh-khu-vuc-duoc-de-xuat-lam-khu-do-thi-rong-gap-3-lan-quan-hoan-kiem-tai-tinh-co-loat-ong-lon-vingroup-sun-group-tt-dang-dau-tu-205251028062001273.htm
Theo Cafebiz, Link gốc : https://cafebiz.vn/toan-canh-khu-vuc-duoc-de-xuat-lam-khu-do-thi-rong-gap-3-lan-quan-hoan-kiem-tai-tinh-co-loat-ong-lon-vingroup-sun-group-tt-dang-dau-tu-17625102813584044.chn
( Chúng tôi chỉ trích dẫn nguồn tin từ internet )
Text link tài trợ:
———————————-
quantum physics and spirituality








